34

48 Churchfield Way, Ashbourne, Co. Meath A84 Y657

3 Bed, 3 Bath, End of Terrace. In the Region of. €495,000. Viewing Strictly by appointment

  • Property Ref: 2537
  • BER A3
  • 300 ft 112 m² - 1206 ft²
  • 3 Beds
  • 3 Baths

This spacious three-bedroom end of terrace property with attic conversion (storage only) comes to the market in the ever-popular Churchfields development. Built in c.2018 and boasting an A3 energy rating, the property is within walking distance of Ashbourne’s fantastic amenities.

No. 48 boasts spacious, bright and well-presented accommodation throughout. There are some lovely features, to include an attic conversion with separate home office, photovoltaic Solar panels, fitted wardrobes in all bedrooms, heated towel rails in all bathrooms and a water softener. There is a driveway to the front with off street parking for two cars and to the rear is a maintenance free landscaped walled garden with shed.

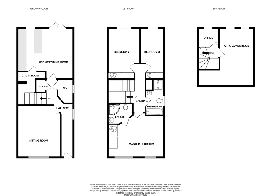
On entering the property, you arrive in the hallway. The sitting room is positioned to the left of the hallway and has a large window overlooking the front of the property. To the rear is the kitchen / dining room with contemporary fitted units, island and patio doors leading to the garden. All integrated appliances are included in the sale. There is a utility room / storage area off the kitchen and a downstairs WC, plus a storage cupboard off the hallway.

U-shaped stairs lead to the first-floor accommodation. The master bedroom with ensuite bathroom is situated at the front of the house and there are two further double bedrooms at the rear. All bedrooms have fitted wardrobes. The main bathroom benefits from a bath and separate shower cubicle. There is also a hotpress on the landing. A further flight of stairs leads to the attic space.

See floorplans for accommodation layout.

Churchfields is a popular development with lovely open green spaces and residents park & playgrounds. It is located on the outskirts of Ashbourne Town Centre within walking distance to an abundance of local shops, restaurants, pubs, gyms and sporting facilities.

To arrange a viewing contact DNG Tormey Lee on 01 835 7089.

PROPERTY ACCOMMODATION
  • Downstairs –
  • Entrance Hall – 1.10 x 4.58 + 2.29
  • Guest WC – 1.78 x 1.38
  • Sitting room – 4.58 x 3.80
  • Kitchen / Dining room – 4.46 x 4.87
  • Utility – 2.38 x 2.92
  • Stairway
  • Upstairs: -
  • Landing – 4.55 x 0.94
  • Master bedroom – 4.02 x 4.96
  • Ensuite – 1.80 x 1.63
  • Bedroom 2 – 4.26 x 2.78
  • Bedroom 3 – 3.96 x 2.09
  • Main bathroom – 1.70 x 3.15
  • Attic: -
  • Converted (storage only)
  • See floorplans for accommodation layout.
FEATURES
  • A3 rated property
  • Built in c. 2018
  • c. 112m2 + attic
  • Attic conversion (storage only)
  • Solar photovoltaic panels
  • Spacious sitting room with large window
  • Spacious kitchen / dining room with patio doors to garden
  • Contemporary fitted units & kitchen island
  • Well-presented East facing garden with shed
  • Utility room / excellent storage space
  • 3 bedrooms
  • 2 bathrooms + guest WC
  • Heated towel rails in all bathrooms
  • Spacious accommodation
  • Fully alarmed
  • Water softener
  • Integrated appliances included
  • Contemporary fitted wardrobes
  • Driveway with space for 2 cars
  • Highly sought-after location