26

6 Millbourne Drive, Ashbourne, Co. Meath A84 YE64

3 Bed, 3 Bath, Semi-Detached House. In the Region of. €435,000. Viewing Strictly by appointment

  • Property Ref: 2524
  • BER A3
  • 300 ft 103.4 m² - 1113 ft²
  • 3 Beds
  • 3 Baths

Located within the popular and conveniently located development of Millbourne and boasting an impressive A3 Energy Rating is this spacious three-bedroom, semi-detached property.

Millbourne is situated just outside the Village of Ashbourne within walking distance of its array of shops and amenities. It is also only a stone’s throw from the new education campus, which includes Coláiste De Lacy Secondary School, Ashbourne Educate Together School, Gaelscoil Na Mí, the new Ashbourne National School and Donaghmore Ashbourne GAA Club.

The property is in excellent overall condition and has been lovingly maintained by its current owners.

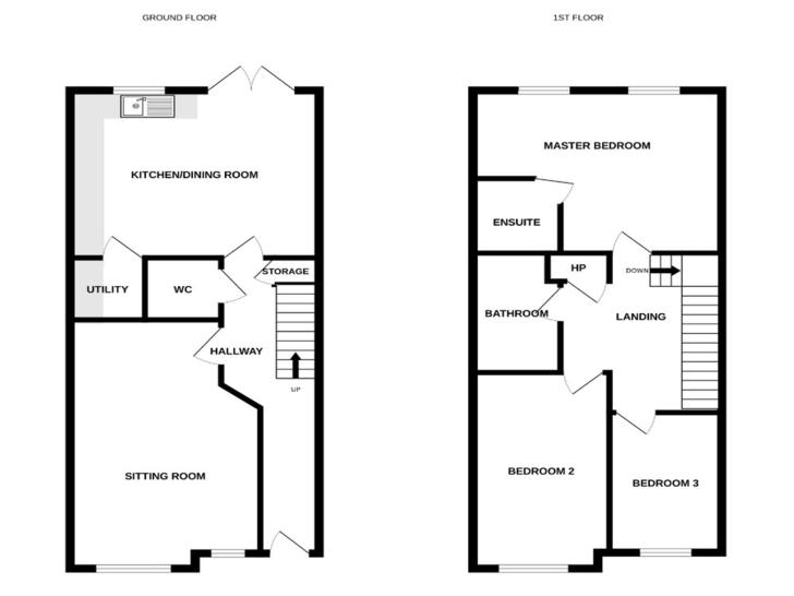
On the ground floor of the property is a spacious sitting room and a lovely bright kitchen with dining area, which leads out to the west facing rear garden. There is also a utility room and downstairs guest WC, as well as a spacious understairs storage area.

Upstairs on the first floor there are three bedrooms (master ensuite) and the main bathroom. The attic is ready for conversion.

The property is located within walking distance to an abundance of local shops, schools, restaurants, pubs, gyms and sporting facilities. Ashbourne is home to a number of good Primary Schools and two Secondary schools. There are well established and thriving sports clubs to include GAA, Soccer, Rugby, Golf, Cricket & Tennis Clubs. For entertainment there is a cinema and new bowling / leisure centre. Ashbourne is home to a number of large supermarkets to include Dunnes Stores, Supervalu, Lidl, Aldi & Tesco, as well as smaller independent shops and boutiques. There are regular commuter bus services to Dublin City Centre ran by Bus Eireann and Ashbourne Connect. There are also regular buses to Blanchardstown and Swords. The M2 motorway is easily accessible for nationwide routes and the Airport is a c. 20-minute drive.

To arrange a viewing contact DNG Tormey Lee on 01 835 7089.

PROPERTY ACCOMMODATION
  • Downstairs –
  • Entrance hall – 6.98 x 1.91
  • Kitchen – 4.85 x 3.81
  • Utility room – 1.65 x 1.45
  • Sitting room - 5.68 x 3.68
  • Guest WC – 1.5 x 1.41
  • Upstairs –
  • Landing – 3.27 x 3.36
  • Master bedroom – 3.69 x 4.96
  • Ensuite – 1.70 x 1.70
  • Bedroom 2 – 4.79 x 2.63
  • Bedroom 3 – 3.20 x 2.17
  • Bathroom – 2.70 x 1.62
FEATURES
  • C. 103.4m2
  • A3 Energy Rating
  • Triple glazed windows
  • High level of insulation
  • Built c. 2018
  • Attic ready for conversion
  • GFCH
  • Semi-detached
  • 3 bedrooms
  • 2 bathrooms + guest WC
  • Utility room
  • Alarm
  • West facing rear garden
  • Off street parking for 2 cars to side of house
  • Covered by the HomeBond 10-year structural guarantee