16 Sale Agreed

8 Broadmeadow Green, Ashbourne, Co. Meath A84 YC60

3 Bed, 1 Bath, Semi-Detached House. SALE AGREED. Viewing Strictly by appointment

  • Property Ref: 2526
  • BER D2
  • 300 ft 108.05 m² - 1163 ft²
  • 3 Beds
  • 1 Bath

Built in the 1970s, 8 Broadmeadow Green must be viewed to be truly appreciated and offers excellent value for a three-bedroom property in Ashbourne. This is an extremely bright and deceptively spacious three-bedroom, two-bathroom bungalow nestled in a quiet corner of the highly sought after Garden City estate on the edge of Ashbourne Town Centre. The property is within a short walk of the popular St. Declan’s National School and local shops.

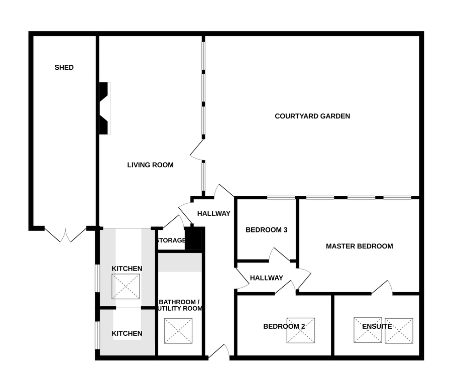
The accommodation is laid out in an L-shape around an inner South facing courtyard garden and boasts feature vaulted ceilings throughout. The property has been immaculately maintained by its current owners, who have carried out a lovely contemporary refurbishment of the ensuite bathroom. They also installed a new gas combi-boiler three years ago and more recently, a new composite front door.

On entering, you arrive into a bright hallway. To the left is the main bathroom, which incorporates a utility room. To the right are the three bedrooms. The master bedroom is very spacious with three large floor to ceiling windows overlooking the courtyard garden. This room boasts the refurbished and very large fully tiled ensuite bathroom with contemporary fittings and a spacious walk-in shower area.

The kitchen and living space are positioned at the other end of the hallway on the opposite side of the courtyard. This is a light filled and spacious open plan space, which incorporates a dining area. There is a brick fireplace with stove and several floor to ceiling windows plus a patio door overlooking the courtyard garden.

The property includes one designated parking space and a storage shed to the front.

Garden City is a popular, award-winning estate on the edge of Ashbourne and offers a wonderful opportunity for an array of different lifestyles. It is ideally situated and is only a short walk from Ashbourne village & Town Centre.

To arrange a viewing contact DNG Tormey Lee on 01 835 7089 or send an email via the online advert.

PROPERTY ACCOMMODATION
  • Entrance hall – 5.78 x 1.16
  • Kitchen – 4.68 x 2.10
  • Living area – 7.03 x 4.19
  • Main bathroom / Utility room – 3.86 x 1.69
  • Hallway to bedrooms – 1.37 x 2.23
  • Master bedroom – 3.84 x 4.80
  • Ensuite – 1.88 x 3.23
  • Bedroom 2 – 2.34 x 3.37
  • Bedroom 3 – 2.57 x 2.23
  • Shed length – approx. 7 meters
FEATURES
  • GIA – 108.05 m2
  • D2 Energy Rating (upgraded from F rating)
  • Built c. 1970s
  • Bungalow positioned in terrace
  • 1 designated parking space
  • New composite front door
  • Combi-boiler only 3 years old
  • Refurbished ensuite bathroom
  • South facing courtyard garden
  • Storage shed
  • Double glazed windows
  • Feature vaulted ceilings
  • Naturally light property
  • Spacious living space
  • Stove included in sale
  • 3 bedrooms
  • 2 bathrooms
  • Utility room
  • Lovely settled mature location
  • Award-winning estate
  • Close to local amenities & schools