9 Sale Agreed

Site 1, Hickeys Lane, Baltrasna, Ashbourne, Co. Meath

Site. SALE AGREED. Viewing Strictly by appointment

  • Property Ref: 2530
  • 300 ft 170.7 m² - 1837 ft²

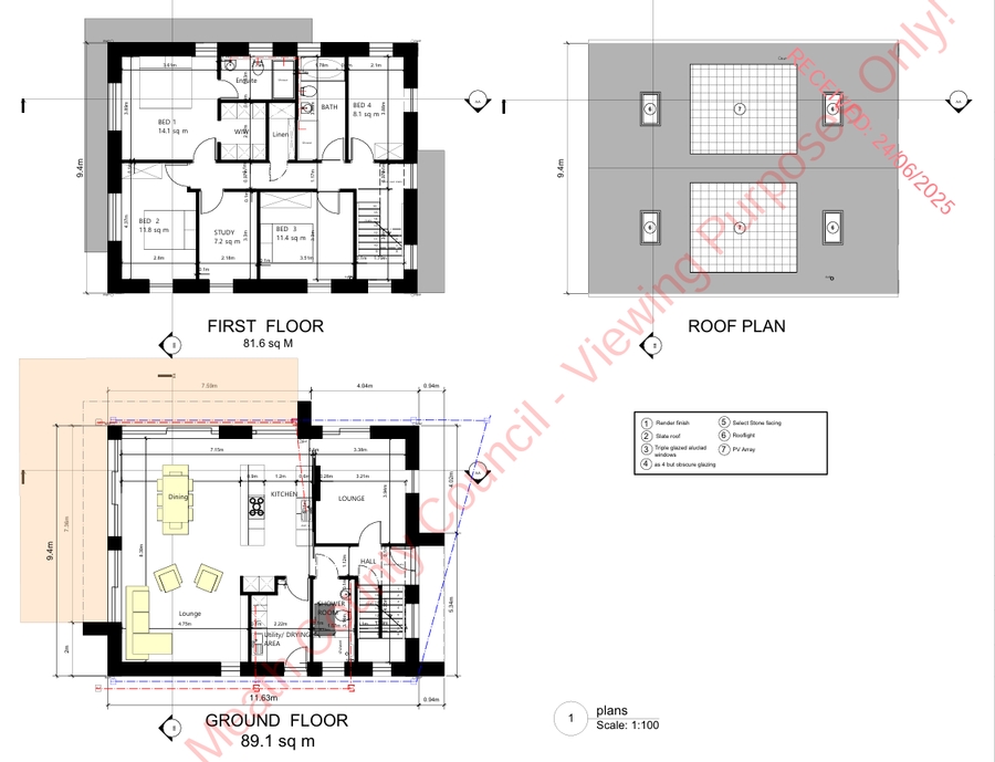
Discover a unique opportunity to build your dream home in the heart of Ashbourne. This prime 0.32-acre site boasts full planning permission (Planning Ref: 2560649) for a spacious, contemporary 4-bedroom detached home. The meticulously designed 170.7 sqm / 1,837.4 sq. ft home combines modern aesthetics with practical living spaces, making it a dream residence in a charming rural setting. Don't miss this opportunity to create your ideal home in a serene and sought-after location.

This spacious site, measuring approximately 0.32 acre, is now available for sale through DNG TormeyLee. What sets this property apart is its coveted full planning permission for a stunning and generously sized detached house.

Ideally located, it is within walking distance of the bustling village of Ashbourne with every conceivable amenity including shops, supermarkets, pubs & restaurants and all major transport routes. Ashbourne has a terrific bus service to Dublin city and all universities. It is serviced by over 150 buses per day with both Bus Eireann and Ashbourne Connect operating routes here. Dublin city centre is circa 25 mins commute by bus.

Further planning details below on this link or searching Planning Ref: 2560649. https://www.eplanning.ie/MeathCC/AppFileRefDetails/2560649/0


Summary of Site 1, Hickeys Lane

Full Planning Permission

c. 0.32-acre site

Planning Ref: 2560649

Folio Number: MH 7098F

4 Bedroom detached property

170.7sqm / 1,837.4 sq.ft

Sough after location

Unique opportunity to build your dream home

PROPERTY ACCOMMODATION
  • 0.32 acre site